广州楼风兼职论坛,广州桑拿飞机论坛2025广州飞机020fj论坛 ,上海419魔都花园凤凰茶楼论坛,修车大队一品楼qm论坛广州一品香论坛qm网

定制液氦传输管线 不锈钢 液氦杜瓦瓶专用管道

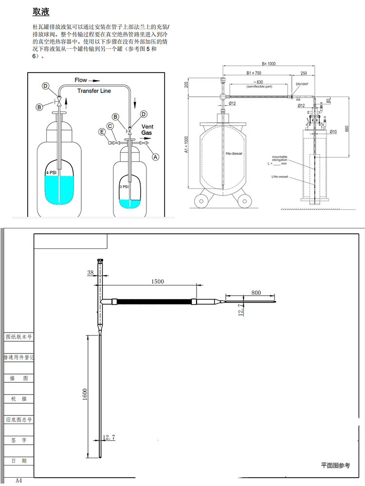
 液氦真空软管主要用于液氦杜瓦间传输液态氦,或者液氦杜瓦传输液氦到使用设备内,其使用时,针对液氦具有高真空保温性能,管路内外间有保温隔热层和真空隔热层,强化其隔热效果,针对液氦杜瓦的特殊输出结构,定制输出管路管径及管路连接尺寸,方便连接及密封。

  液氦真空软管主要用于液氦杜瓦间传输液态氦,或者液氦杜瓦传输液氦到使用设备内,其使用时,针对液氦具有高真空保温性能,管路内外间有保温隔热层和真空隔热层,强化其隔热效果,针对液氦杜瓦的特殊输出结构,定制输出管路管径及管路连接尺寸,方便连接及密封。


未标题-114.jpg

液氦管道_02.jpg

液氦管道_03.jpg

液氦管道_04.jpg


  • 本文链接地址:http://www.97744.cn/1482.html
  • 收缩
    • 电话咨询

    • 15611258074
    • 微信咨询
    官方微信